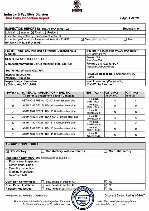
Third Party Inspection

Our products have been inspected and approved by SGS, BV, MOODY, TUBOSCOPE organizations

super duplex stainless pipe,alloy steel pipes china,a333 pipe

Third Party Inspection

Our products have been inspected and approved by SGS, BV, MOODY, TUBOSCOPE organizations

Third Party Inspection,en10204 tube,pipe fittings factory,steel tube distributors
BackYou are in :  Home  >  Quality  >  Third Party Inspection

Third Party Inspection

< 1 >
We use cookies and other tracking technologies to improve your browsing experience on our website, to show you personalized content and targeted ads, to analyze our website traffic, and to understand where our visitors are coming from,This behavior is in compliance with the user consent policy.